In einer der gefragtesten Wohnlagen Gräfelfings präsentiert sich diese außergewöhnliche Doppelhaushälfte, die dank ihres zurückgesetzten Trakts den Charakter eines freistehenden Einfamilienhauses vermittelt. Mit viel Gespür für zeitgemäßes Design und hochwertige Materialien wurde das Haus in den letzten Jahren umfassend modernisiert und begeistert heute mit einer gelungenen Kombination aus Helligkeit, Großzügigkeit und moderner Architektur.
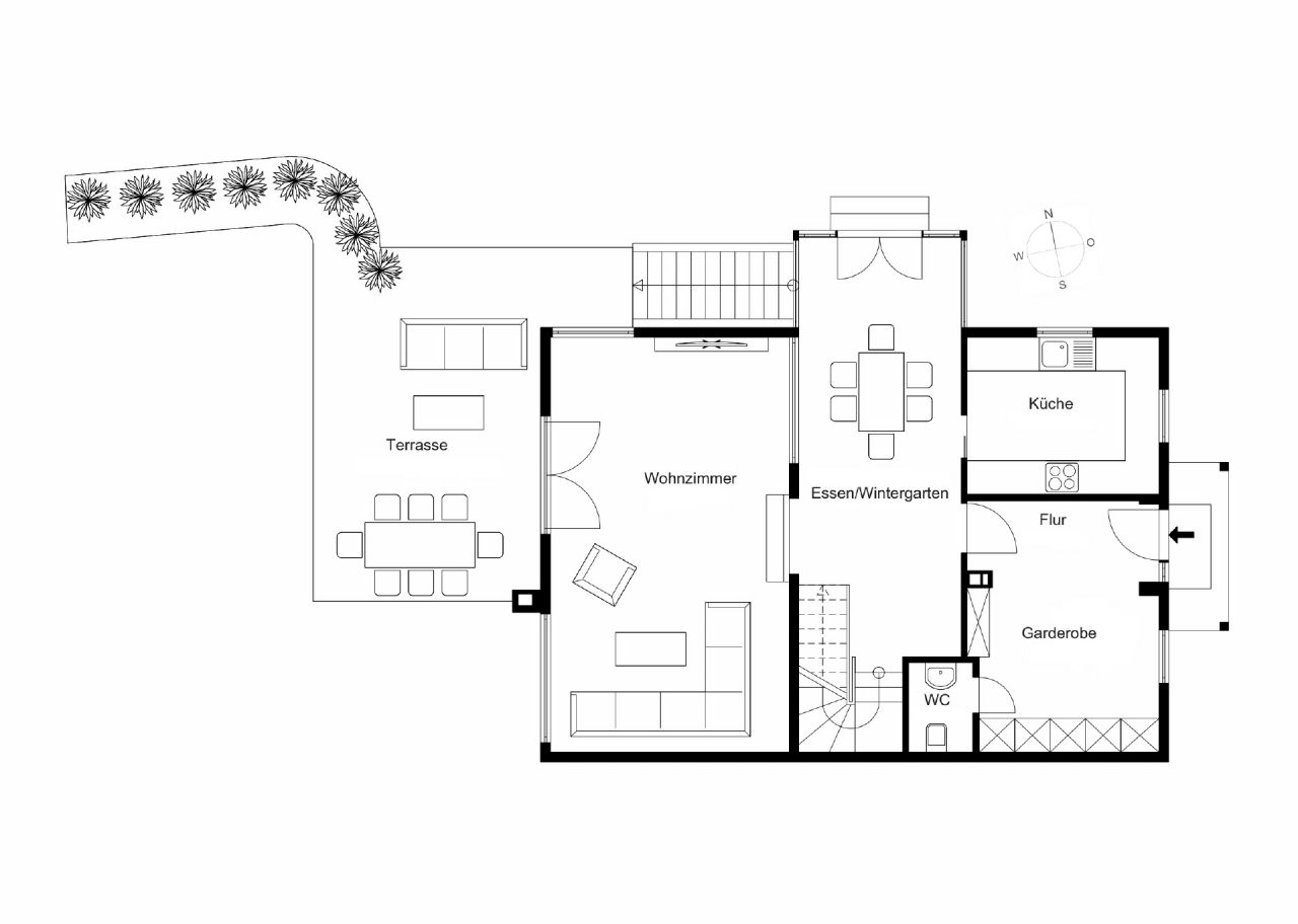
Bereits der Eingangsbereich mit großzügiger Garderobe und Gäste-WC vermittelt ein repräsentatives, offenes Wohngefühl. Über eine Glastür eröffnet sich der rund 50 m² große Wohn- und Essbereich mit verglastem Wintergartenerker zum lichtdurchfluteten Herzstück des Hauses. Die 2023 komplett erneuerte Einbauküche mit hochwertigen Markengeräten ist zum Speisebereich geöffnet und lädt zum Kochen und Genießen ein. Bodentiefe Sicherheitsfenster verbinden den Wohnraum nahtlos mit der Westterrasse und dem 2022/2023 neu gestalteten, pflegeleichten Garten, der dank vollständigem Sichtschutz maximale Privatsphäre bietet.
Im Obergeschoss erwarten Sie zwei großzügige Schlafzimmer mit Klimaanlage und jeweils eigenem Balkon sowie zwei moderne Bäder mit ebenerdigen Duschen – eines davon zusätzlich mit einer Sauna ausgestattet. Beide Schlafzimmer können je nach Bedarf geteilt werden, sodass zwei weitere Räume entstehen.
Sowohl von innen, als auch über einen separaten Zugang von außen gelangen Sie in die Einliegerwohnung im Souterrain, die mit einem Gästezimmer, einem Hobbyraum, einem stilvollen Designerbad und vielfältigen Nutzungsmöglichkeiten überzeugt. Ein separater Weinkeller, ein Fitnessraum, ein Hauswirtschaftsraum sowie ein Technikraum runden das Angebot ab. Zur Immobilie gehört außerdem eine Duplex-Garage.
Die Miete setzt sich wie folgt zusammen: Miete Doppelhaushälfte 4.350,00 Euro + 150,00 Euro NK = 4.500,00 Euro Gesamtmiete (ohne Heizung und Warmwasser).









