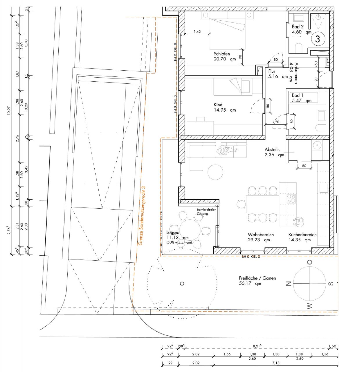
Diese hochwertige Neubauwohnung im Erdgeschoss überzeugt durch ihren durchdachten Grundriss, eine angenehme Raumaufteilung und viel Tageslicht aufgrund der bodentiefen Fenster. Der einladende Eingangsbereich geht nahtlos in den Flur über, der sich durch die gesamte Wohnung zieht und alle Räume miteinander verbindet.
Rechts befindet sich das großzügige Schlafzimmer mit eigenem, modernem Bad, ausgestattet mit einer begehbaren Dusche. Direkt daneben liegt ein weiteres Zimmer, das sich ideal als Kinder-, Gästezimmer oder Homeoffice nutzen lässt. Gegenüber befindet sich das zweite, etwas größere Badezimmer mit Badewanne.
Am Ende des Flurs erreicht man den hellen, offenen Wohn-/Ess- und Kochbereich mit angrenzendem Abstellraum mit Waschmaschinenanschluss. Eine Einbauküche wird nicht gestellt. Von hier aus hat man Zugang zur sonnigen Terrasse mit Südost-Ausrichtung – ein idealer Ort zum Entspannen. Darüber hinaus gehört ein Gartenanteil mit exklusivem Nutzungsrecht zur Wohnung, der zusätzlichen Freiraum im Grünen bietet.
Zur Wohnung gehört neben einem eigenen Kellerabteil auch ein Tiefgaragenstellplatz.
Die Miete setzt sich wie folgt zusammen: Miete Erdgeschosswohnung 2.850,00 Euro + 370,00 Euro NK + 130,00 Euro TG-Stellplatz = 3.350,00 Euro Gesamtmiete.









