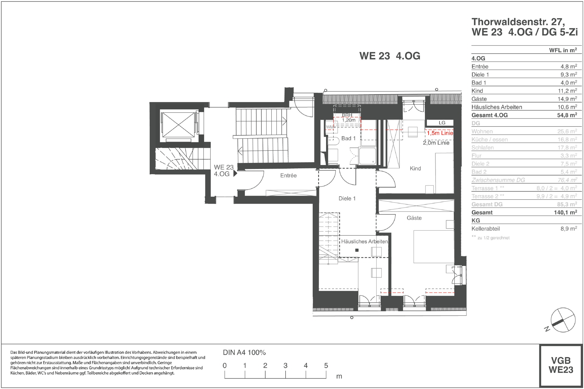
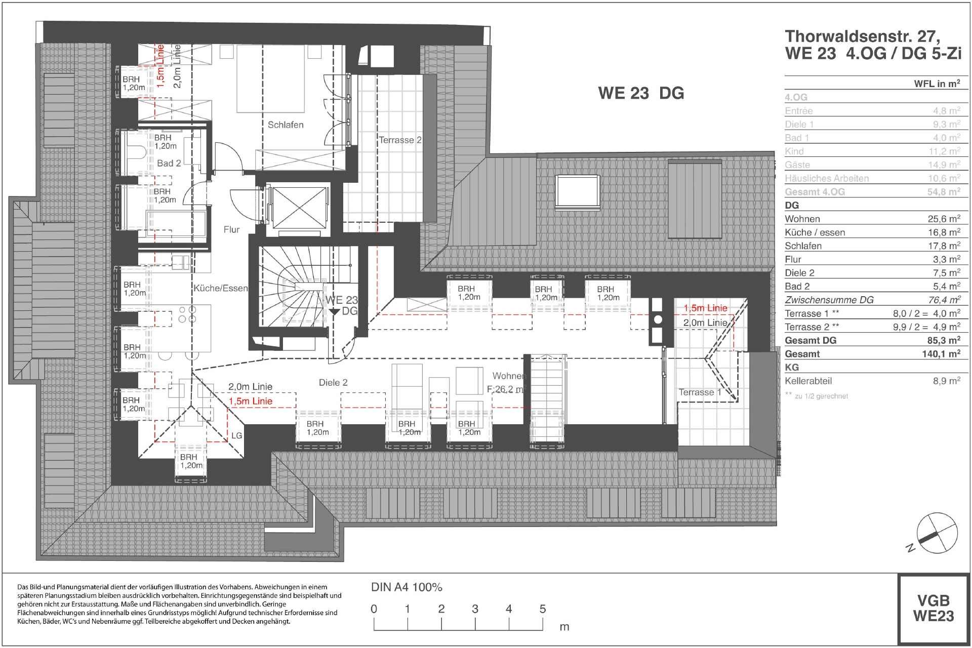
Penthouse über zwei Ebenen – stilvoll wohnen über den Dächern der Stadt
Diese außergewöhnliche Penthousewohnung erstreckt sich über die beiden obersten Etagen eines vollständig sanierten Altbaus, der heute mit der Qualität und dem Komfort eines Neubaus überzeugt. Hochwertige Materialien, moderne Ausstattung und großzügige Raumhöhen schaffen ein Wohngefühl, das urbanes Flair und Ruhe perfekt vereint.
Die untere Ebene empfängt Sie mit einem der beiden Wohnungseingänge sowie einem einladenden Flur. Zwei helle Schlafzimmer bieten vielseitige Nutzungsmöglichkeiten - ob als Kinder-, Gäste- oder Arbeitszimmer. Ein modernes Tageslichtbad mit (fast) bodentiefer Dusche und Waschmaschinenanschluss ergänzt diesen Bereich ideal.
Das Herzstück der Wohnung liegt eine Etage höher: Der großzügige, lichtdurchflutete Wohnbereich öffnet sich zur sonnigen Terrasse, die zum Entspannen und Genießen einlädt. Daran schließt sich der offene Essbereich mit integrierter, im Mietpreis enthaltener Einbauküche an - perfekt für gemeinsame Abende und geselliges Beisammensein.
Ein weiteres Highlight ist der direkte Zugang zur Wohnung über den Aufzug, der Sie bequem in die obere Wohnebene führt. Hier befinden sich zudem ein stilvolles Bad mit Wanne sowie das großzügige Masterschlafzimmer mit Zugang zu einer zweiten Terrasse - ein privater Rückzugsort mit herrlichem Ausblick.
Das Schlafzimmer auf der oberen Ebene sowie der Wohn-, Ess-, und Kochbereich sind mit Klimaanlagen ausgestattet.
Dieses Penthouse vereint die historische Eleganz eines Altbaus mit dem Wohnkomfort moderner Architektur – ideal für alle, die das Besondere suchen.
Die Miete setzt sich wie folgt zusammen: Miete Maisonettewohnung 3.925,00 Euro Kaltmiete + 520,00 Euro Nebenkosten = 4.4450,00 Euro Gesamtmiete.









