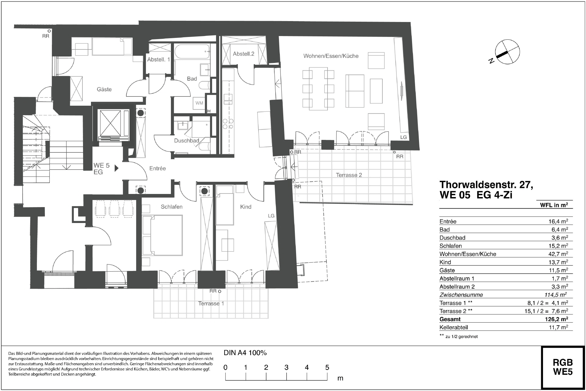
Diese exklusive 4-Zimmer-Wohnung verbindet großzügiges Wohnen mit hochwertiger Ausstattung und einer gelungenen Raumaufteilung. Die umfangreiche Modernisierung hat nicht nur den technischen Standard auf ein neues Niveau gehoben, sondern auch ein stilvolles Wohnambiente geschaffen.
Der offene Wohn-, Ess- und Küchenbereich beeindruckt mit seiner Weitläufigkeit und bietet viel Raum für individuelle Gestaltung. Die elegante Einbauküche wurde mit hochwertigen Geräten ausgestattet und fügt sich nahtlos in das moderne Wohnkonzept ein. Hochwertiger Parkettboden und eine Fußbodenheizung sorgen für eine behagliche Atmosphäre.
Das Hauptschlafzimmer überzeugt mit großzügigen Dimensionen und bietet vielfältige Einrichtungsmöglichkeiten. Zwei weitere Zimmer lassen sich flexibel als Kinderzimmer, Gästezimmer oder Homeoffice nutzen.
Das Hauptbadezimmer verfügt über eine hochwertige Badewanne, stilvolle Armaturen und geschmackvolle Fliesen, während das zusätzliche Duschbad mit einer bodengleichen Dusche zusätzlichen Komfort bietet.
Die große Terrasse ist ein besonderes Highlight der Wohnung und erweitert den Wohnraum ins Freie. Sie bietet viel Platz für entspannte Stunden und vielseitige Nutzungsmöglichkeiten.
Im Zuge der umfassenden Sanierung wurden unter anderem die gesamte Haustechnik erneuert, eine verbesserte Wärmedämmung integriert und die Fassade stilvoll modernisiert.
Die Miete setzt sich wie folgt zusammen: Miete Etagenwohnung 3.450,00 Euro Kaltmiete + 440,00 Euro Nebenkosten = 3.890,00 Euro Gesamtmiete.
Bei den verwendeten Bildern handelt es sich um Musterbilder einer vergleichbaren Wohnung des gleichen Projekts.









